39 Victoria Street, MACKAY QLD 4740

Offers over $650,000

911

squareMeter

PRIME INVESTMENT VICTORIA ST CORNER

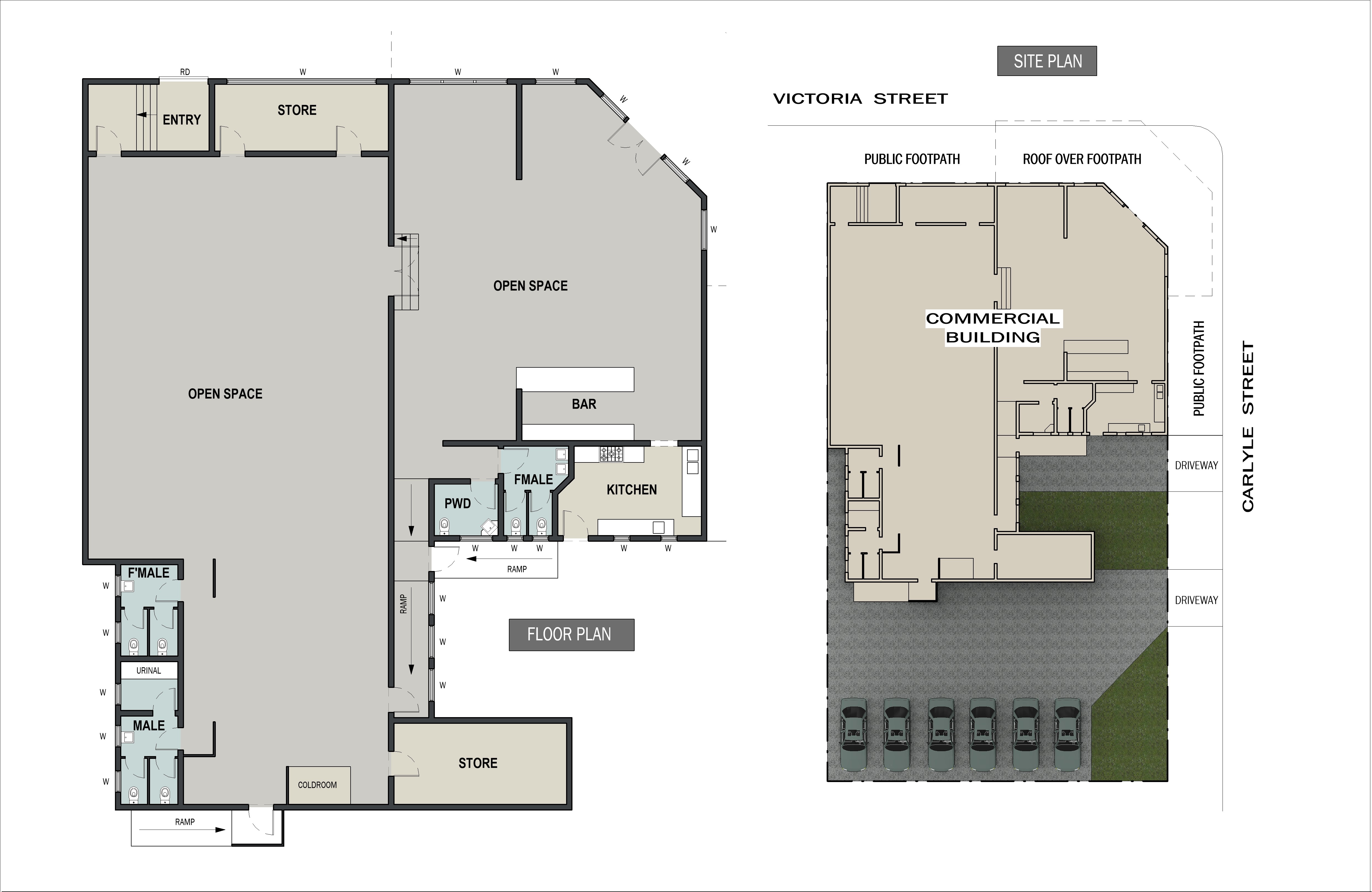
On the corner of Carlyle Street on the fringe of Mackay CBD and approximately 550m² of building.

It has great exposure and profile, only one city block from the Riverfront preferred development area, Mackay Courthouse and more.

Is fitted out with a commercial kitchen and bar and is fully air-conditioned and one of the very few with plenty of car parking on site and on the street.

A great freehold choice as it is sitting on 911m2 of corner site.

To inspect, call Greg Chappell 0408 775 810.

Property Listed By

Principal & Auctioneer
Secret Link

Listing Enquiry

This field is hidden when viewing the form
This field is hidden when viewing the form
This field is hidden when viewing the form
Name(Required)